Číslicovka, JÍDELNÍ VÝTAH, ZPĚCHÁ

Místo pro témata a příspěvky spadající MIMO počítačovou problematiku (tedy např. sport, zdraví, vtipy, škola...).

Moderátoři: Mods_junior, Mods_senior

OndraRuza
nováček
Příspěvky: 1
Registrován: květen 11
Pohlaví: Muž
Stav:
Offline

Číslicovka, JÍDELNÍ VÝTAH, ZPĚCHÁ

Příspěvekod OndraRuza » 10 kvě 2011 10:20

Obrázek[/URL]

Jak je na obrázku nakresleno výtah bude dopravovat jísdlo z jednoho patra do druhého. V každém patře budou 2 tlačítka nahoru a dolu a potřebuji vyřešit aby se vátah nerozjel když bude mít otevřené dveře a dále ve výtahové šachtě budou umístěny buď relé nebo optické závory a když výtah projede buď zpomalí na poloviny nebo bude zpomalovat postupně. PROSÍM O POMOC STAČÍ NÁPOVĚDA NEBO ČÁSTEČNÉ ŘEŠENÍ.

Reklama
Uživatelský avatar
karlos
Master Level 8
Master Level 8
Příspěvky: 6447
Registrován: květen 05
Bydliště: Domažlice
Pohlaví: Muž
Stav:
Offline

Re: Číslicovka, JÍDELNÍ VÝTAH, ZPĚCHÁ

Příspěvekod karlos » 10 kvě 2011 12:39

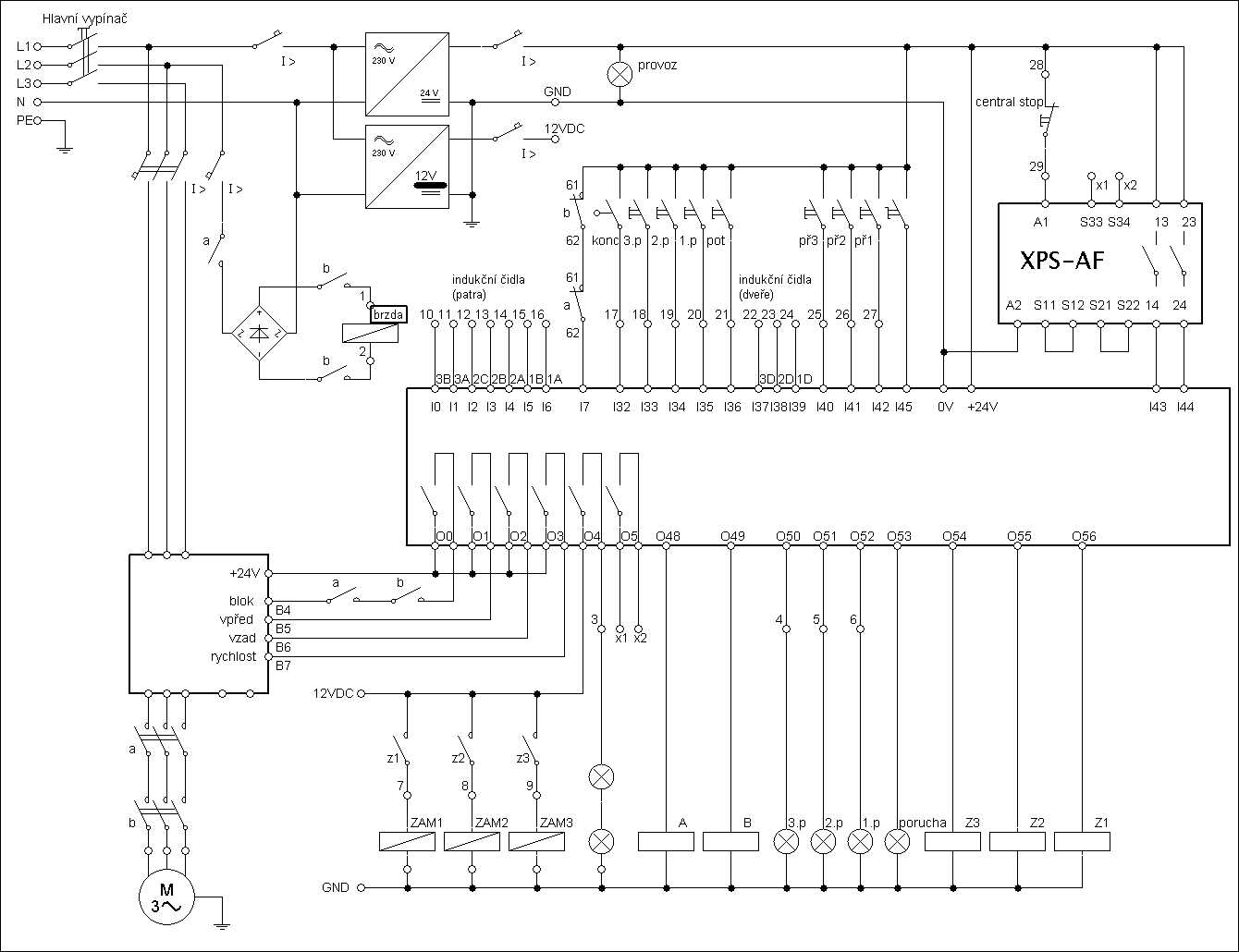
Před nedávnem jsem řešil podobný případ. Jde o výtahovou plošinu pro vozíčkáře, kde jsou tři podlaží, přivolávače v každém podlaží, ovládání z plošiny, osvětlení plošiny v závislosti na jejím obsazení, zpomalení před zastavením, elektrické zámky v podlažích,... Celý systém je řízený PLC a rychlost motoru je řízena frekvenčním měničem. Pro inspiraci posílám schéma.
Přílohy
vytah-racov.jpg
Co nejde silou, jde ještě větší silou... :-)


Zpět na “Vše ostatní (Off topic)”

Kdo je online

Uživatelé prohlížející si toto fórum: Žádní registrovaní uživatelé a 11 hostů