Ideální zapojení internetu v domě
Moderátoři: Mods_senior, Mods_junior, HW spec team
Ideální zapojení internetu v domě
Zdravím, řeším rozvod internetu v novém domě.
Chci se poradit, jak jej rozvést, co se týče datových zásuvek a pokrytí wifi.
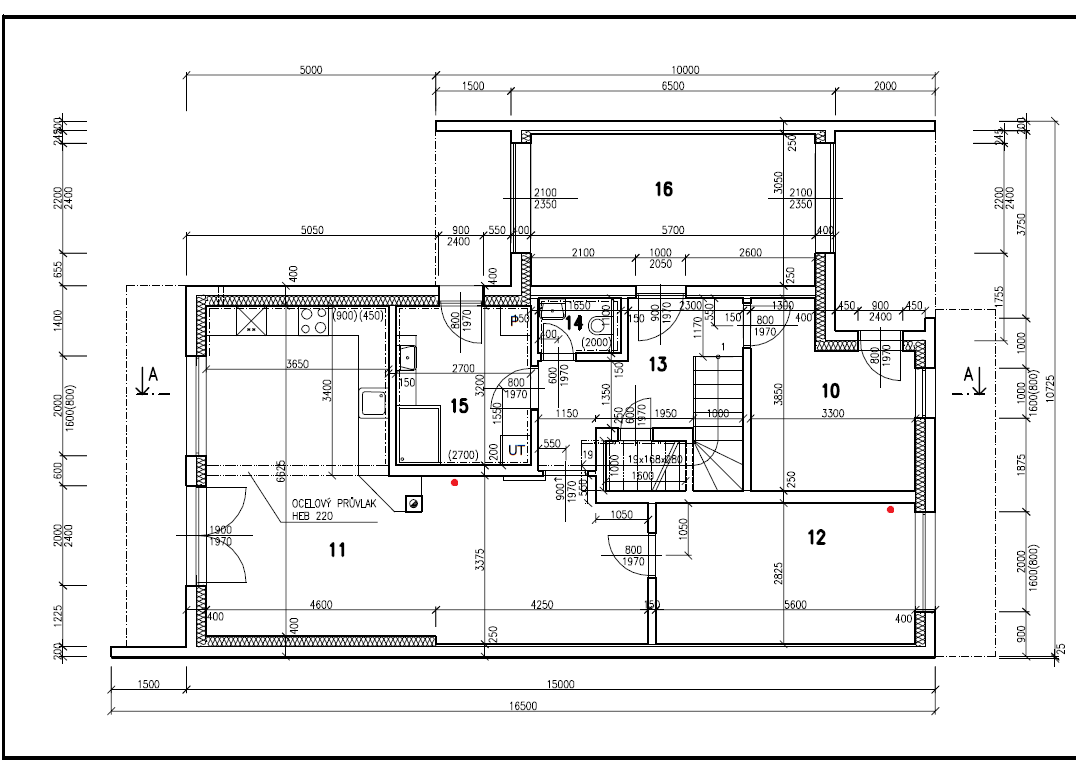
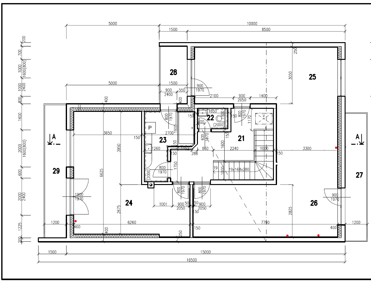
Na plánu jsou červené tečky, kde se plánují datové zásuvky po dvou, buď kvůli TV nebo stolům s PC a drobnostem okolo. Dále bych je udělal tam, kde budou routery atp.
Tím se dostávám k první otázce, jsem opravdu laik v síťařině, tak se budu ptát jako laik:
Jak nejlépe řešit zapojení internetu a zásuvek
modem->router->switch->zásuvky + routery na wifi
?
Celkově budou asi 4 porty v zásuvkách v prvním patře, 7 portů ve druhém patře.
Dále wifi, kam byste routery umístili, pro pokrytí obou pater, ideálně i trochu ven z prvního patra do zahrady (velké dveře v kuchyňské části)? Připomínám, že po celém prostoru, je ještě půdní obyvatelný prostor.
Zdi jsou zhruba 30cm u nosných a 15cm u příček. Materiál betonová skořepinová tvárnice, většinou dutá.
Pokud by někdo mohl, tak by se šiklo nahození i modelů routerů, switche (jestli bude), které by vyhovovaly.
Kabely budou CAT6, rychlost minimálně 100 OPRAVA, UŽ PŘIDALI I 200/7 Mbps, takže bude tato, zařízení na wifi minimálně 6. Počítá se i s NASem.
Díky!
Chci se poradit, jak jej rozvést, co se týče datových zásuvek a pokrytí wifi.
Na plánu jsou červené tečky, kde se plánují datové zásuvky po dvou, buď kvůli TV nebo stolům s PC a drobnostem okolo. Dále bych je udělal tam, kde budou routery atp.
Tím se dostávám k první otázce, jsem opravdu laik v síťařině, tak se budu ptát jako laik:
Jak nejlépe řešit zapojení internetu a zásuvek
modem->router->switch->zásuvky + routery na wifi
?
Celkově budou asi 4 porty v zásuvkách v prvním patře, 7 portů ve druhém patře.
Dále wifi, kam byste routery umístili, pro pokrytí obou pater, ideálně i trochu ven z prvního patra do zahrady (velké dveře v kuchyňské části)? Připomínám, že po celém prostoru, je ještě půdní obyvatelný prostor.
Zdi jsou zhruba 30cm u nosných a 15cm u příček. Materiál betonová skořepinová tvárnice, většinou dutá.
Pokud by někdo mohl, tak by se šiklo nahození i modelů routerů, switche (jestli bude), které by vyhovovaly.
Kabely budou CAT6, rychlost minimálně 100 OPRAVA, UŽ PŘIDALI I 200/7 Mbps, takže bude tato, zařízení na wifi minimálně 6. Počítá se i s NASem.
Díky!
Naposledy upravil(a) Karrex dne 02 srp 2018 20:53, celkem upraveno 1 x.
Sestava v profilu.
Watercooling Club EXOverclocker@HWBot league rank#1 Aprilia Shiver Club BMW ///M Club
Watercooling Club EXOverclocker@HWBot league rank#1 Aprilia Shiver Club BMW ///M Club
-
Uziv00
Re: Ideální zapojení internetu v domě
Za mě bych to volil asi takto:
Jeden WiFi AP nahoře vedle dvěří (29). Druhý AP nahoře na zdi vně schodiště mezi 25 a 26. Mělo by to stačit.
K nahození modemu, routerů atd. je třeba vědět, jaké připojení budeš mít, jaká pásma chceš, atd.
K tomu co je zatím známo - budeš potřebovat switch - pokud nepožaduješ nějaké další věci jako PoE, či management, pak by mohla být rozumná volba: https://www.czc.cz/netgear-gs108_2/103737/produkt
Místo jednoho AP můžeš použít i router.
zásuvky třeba https://www.lancomat.cz/sx9-2-6-stp-wh- ... gLkDvD_BwE
Jeden WiFi AP nahoře vedle dvěří (29). Druhý AP nahoře na zdi vně schodiště mezi 25 a 26. Mělo by to stačit.
K nahození modemu, routerů atd. je třeba vědět, jaké připojení budeš mít, jaká pásma chceš, atd.
K tomu co je zatím známo - budeš potřebovat switch - pokud nepožaduješ nějaké další věci jako PoE, či management, pak by mohla být rozumná volba: https://www.czc.cz/netgear-gs108_2/103737/produkt
Místo jednoho AP můžeš použít i router.
zásuvky třeba https://www.lancomat.cz/sx9-2-6-stp-wh- ... gLkDvD_BwE
Re: Ideální zapojení internetu v domě
Můžu použít po modemu router, pak switch a pak zase router? Nebo by měl být ten WiFi AP?
Modem asi řešit nebudu, ten bych měl dostat od poskytovatele, aspoň do tohoto domu ho dodali, připojení bude kabelové. Viděl bych to na dual band, zařízení máme povětšinou nové nebo nejnovější.
Modem asi řešit nebudu, ten bych měl dostat od poskytovatele, aspoň do tohoto domu ho dodali, připojení bude kabelové. Viděl bych to na dual band, zařízení máme povětšinou nové nebo nejnovější.
Sestava v profilu.
Watercooling Club EXOverclocker@HWBot league rank#1 Aprilia Shiver Club BMW ///M Club
Watercooling Club EXOverclocker@HWBot league rank#1 Aprilia Shiver Club BMW ///M Club
-
Uziv00
Re: Ideální zapojení internetu v domě
Switch a zase router pouze v případě, že bys chtěl oddělit sítě. Jinak můžeš použít router jako switch - viz. můj podpis.
Re: Ideální zapojení internetu v domě
Aha, takže když budu mít router -> switch -> a poslední (druhý) router nastavím jako switch, tak budou také oddělené sítě? Ten druhý je tam víceméně hlavně na rozšíření wifi, ale i s možností připojení kabelu, ale jestli je to jak říkáš, tak budu řešit spíš to AP. Jestli jsem to ale nějak špatně pochopil, radši mě ještě oprav.
Díky
Kdyby daný obyvatel pokoje 29 nechtěl mít v místnosti router (nebo to AP), šlo by to dát bez nějakých ústupků - klidně koupit další AP - někam jinam?
Pokud bys mohl poradit nějaký ten router a dostatečné AP, byl bych moc vděčný, abych to upřesnil, těch 6 zařízení, co jsem psal, tak je čistě na WiFi a někdy budou fungovat klidně 4 zaráz + minimálně 2 kabelové zařízení.
Někde jsem četl to natočení antén, jak je v tomto případě dát (u obou zařízení - router a AP/router)? Jedna svisle a jedna vodorovně? Co když jich bude víc?
Díky
Kdyby daný obyvatel pokoje 29 nechtěl mít v místnosti router (nebo to AP), šlo by to dát bez nějakých ústupků - klidně koupit další AP - někam jinam?
Pokud bys mohl poradit nějaký ten router a dostatečné AP, byl bych moc vděčný, abych to upřesnil, těch 6 zařízení, co jsem psal, tak je čistě na WiFi a někdy budou fungovat klidně 4 zaráz + minimálně 2 kabelové zařízení.
Někde jsem četl to natočení antén, jak je v tomto případě dát (u obou zařízení - router a AP/router)? Jedna svisle a jedna vodorovně? Co když jich bude víc?
Sestava v profilu.
Watercooling Club EXOverclocker@HWBot league rank#1 Aprilia Shiver Club BMW ///M Club
Watercooling Club EXOverclocker@HWBot league rank#1 Aprilia Shiver Club BMW ///M Club
-
Uziv00
Re: Ideální zapojení internetu v domě
"takže když budu mít router -> switch -> a poslední (druhý) router nastavím jako switch, tak budou také oddělené sítě?" Ne. Z toho je vidět, že ses na ten návod ani nepodíval 
"Kdyby daný obyvatel pokoje 29 nechtěl mít v místnosti router", tak bys ho musel dát do nižšího patra, bo požaduješ signál na zahradě, která by měla být tím směrem (pokud to dobře čtu).
Poradit ti můžu, až sdělíš potřebné informace - zatím vím jen o kabelu (koax, utp, xDSL?), netuším, jaké zařízení by ti dodal provider, neznám další požadavky na router (DLNA, USB, atd.), netuším, jakou rychlost by měl zvládat, přibližná cena, nové technologie (beamforming atd.).
Natočení antén:
2 - v úhlu 45°k základně
3- prostřední svisle, ostaní 45°k základně (do vějíře)
"Kdyby daný obyvatel pokoje 29 nechtěl mít v místnosti router", tak bys ho musel dát do nižšího patra, bo požaduješ signál na zahradě, která by měla být tím směrem (pokud to dobře čtu).
Poradit ti můžu, až sdělíš potřebné informace - zatím vím jen o kabelu (koax, utp, xDSL?), netuším, jaké zařízení by ti dodal provider, neznám další požadavky na router (DLNA, USB, atd.), netuším, jakou rychlost by měl zvládat, přibližná cena, nové technologie (beamforming atd.).
Natočení antén:
2 - v úhlu 45°k základně
3- prostřední svisle, ostaní 45°k základně (do vějíře)
Re: Ideální zapojení internetu v domě
Právěže četl a přišlo mi, že by to měla být stejná síť. Četl jsem to téma i několik roků zpátky, včera i dnes a proto jsem se ještě ptal.
Pak jsi mi ale napsal, že to bude jiná síť, když dám druhý router. Takže mě to trochu zmátlo.
Tady je pravda moje chyba, neupřesnil jsem to, ale měl jsem na mysli právě zapojení z tvého tématu.
Takže do třetice, pro upřesnění, když nepoužiji nikde WiFi AP, tak můžu použít 2 routery a vše bude v jedné síti?
Modem bohužel teďkon asi nezjistím, co přesně bys o něm potřeboval vědět?
Momentálně nám dali http://www.arris.com/products/touchston ... -tg2492-s/ bez zaplé WiFi.
Poskytovatel zde https://www.selfnet.cz/cs/internet/internet-kabel .
Rychlost jsem psal v prvním příspěvku, tuším, že tam bude maximálně 100/5Mb OPRAVA, UŽ PŘIDALI I 200/7 Mbps, takže bude tato.
USB být nemusí. Poté jsem psal, že v domě bude NAS, takže brát v potaz. Cena opravdu moc nehraje roli, samozřejmě asi nebudu chtít router za 10, pokud to nějak nevyužiji, od toho se ptám zde, co pořídit, abych nekoupil něco zbytečně drahého.
Chci to nejlepší výkon/cena.
Jak jsem psal, jsem laik na síť a opravdu se v tom nepohybuji a ani neznám jednotlivé funkce (jediné co znám, je asi MIMO). Beamforming jsem četl, že má většina AC routerů a ty už dnes beru jako samozřejmost.
Ber mě prosím jako člověka, který maximálně ví co je AP, router, switch, ale jejich jednotlivé funkce, či nové funkce vůbec nezná a nechá si poradit, co pro něj bude nejlepší, za co se vyplatí si připlatit, co jako moderní člověk s nejmodernější technikou využiji.
PS: I ten beamforming jsem musel googlit
.
Pak jsi mi ale napsal, že to bude jiná síť, když dám druhý router. Takže mě to trochu zmátlo.
Tady je pravda moje chyba, neupřesnil jsem to, ale měl jsem na mysli právě zapojení z tvého tématu.
Takže do třetice, pro upřesnění, když nepoužiji nikde WiFi AP, tak můžu použít 2 routery a vše bude v jedné síti?
Modem bohužel teďkon asi nezjistím, co přesně bys o něm potřeboval vědět?
Momentálně nám dali http://www.arris.com/products/touchston ... -tg2492-s/ bez zaplé WiFi.
Poskytovatel zde https://www.selfnet.cz/cs/internet/internet-kabel .
Rychlost jsem psal v prvním příspěvku, tuším, že tam bude maximálně 100/5Mb OPRAVA, UŽ PŘIDALI I 200/7 Mbps, takže bude tato.
USB být nemusí. Poté jsem psal, že v domě bude NAS, takže brát v potaz. Cena opravdu moc nehraje roli, samozřejmě asi nebudu chtít router za 10, pokud to nějak nevyužiji, od toho se ptám zde, co pořídit, abych nekoupil něco zbytečně drahého.
Chci to nejlepší výkon/cena.
Jak jsem psal, jsem laik na síť a opravdu se v tom nepohybuji a ani neznám jednotlivé funkce (jediné co znám, je asi MIMO). Beamforming jsem četl, že má většina AC routerů a ty už dnes beru jako samozřejmost.
Ber mě prosím jako člověka, který maximálně ví co je AP, router, switch, ale jejich jednotlivé funkce, či nové funkce vůbec nezná a nechá si poradit, co pro něj bude nejlepší, za co se vyplatí si připlatit, co jako moderní člověk s nejmodernější technikou využiji.
PS: I ten beamforming jsem musel googlit
Sestava v profilu.
Watercooling Club EXOverclocker@HWBot league rank#1 Aprilia Shiver Club BMW ///M Club
Watercooling Club EXOverclocker@HWBot league rank#1 Aprilia Shiver Club BMW ///M Club
-
Uziv00
Re: Ideální zapojení internetu v domě
takže do třetice - pokud použiješ druhý router jako router, pak máš dvě rozdílné sítě.
- pokud ale druhý router zapojíš jako switch, pak máš jednu síť.
To, co ti dodají je modemrouter. Tedy routování bude dělat on. Můžeš ho použít i k vysílání wifi.
K němu připojíš switch, ke switchi NAS a další zařízení LAN. Pokud ti to bude vycházet líp, klidně i jeden WiFi AP.
Jako další WiFi AP (router jako switch) se jeví jako rozumná volba https://www.czc.cz/asus-rt-ac53/197380/produkt , nebo https://www.czc.cz/tp-link-archer-c2-ac ... 11/produkt , nicméně lze použít cokoli, co má gigabitové porty a 3 antény. Pokud bys chtěl vyšší přenosouvou rychlost, pak už by to bylo přes 2.000,-
- pokud ale druhý router zapojíš jako switch, pak máš jednu síť.
To, co ti dodají je modemrouter. Tedy routování bude dělat on. Můžeš ho použít i k vysílání wifi.
K němu připojíš switch, ke switchi NAS a další zařízení LAN. Pokud ti to bude vycházet líp, klidně i jeden WiFi AP.
Jako další WiFi AP (router jako switch) se jeví jako rozumná volba https://www.czc.cz/asus-rt-ac53/197380/produkt , nebo https://www.czc.cz/tp-link-archer-c2-ac ... 11/produkt , nicméně lze použít cokoli, co má gigabitové porty a 3 antény. Pokud bys chtěl vyšší přenosouvou rychlost, pak už by to bylo přes 2.000,-
Re: Ideální zapojení internetu v domě
Jestli se nepletu, mě ho teďkon nastavili do bridge, proto mám hned vedle svůj, protože má i wifi (pokud mu dají možnost rozesílat wifi, chtějí za to další poplatek).
Navíc ten jejich bude schovaný ve skříni někde u jejich hlavní zásuvky a to je úplně v rohu u vchodu do domu. Proto prosím ber, že to bude čistě modem a pak bude další router a router.
Ještě se zeptám, jakou výhodu má to, že použiji WiFi AP místo routeru?
Ty tebou doporučené routery by opravdu stačili? Fakt třeba na 3 WiFi zařízení a klidně i víc, s 200Mbit připojením?
Já počítal s vybavením klidně kolem 15000Kč, ale jestli tam není za co tolik zaplatit, nechám si poradit. Tyhle co se týče technologií, jaké technologie (užitečné) jsou třeba v těch lepších zařízeních?
Switch budu potřebovat s minimálně 14 porty, jestli dobře počítám všechny datové zásuvky, NAS, druhý router/AP atp.
Navíc ten jejich bude schovaný ve skříni někde u jejich hlavní zásuvky a to je úplně v rohu u vchodu do domu. Proto prosím ber, že to bude čistě modem a pak bude další router a router.
Ještě se zeptám, jakou výhodu má to, že použiji WiFi AP místo routeru?
Ty tebou doporučené routery by opravdu stačili? Fakt třeba na 3 WiFi zařízení a klidně i víc, s 200Mbit připojením?
Já počítal s vybavením klidně kolem 15000Kč, ale jestli tam není za co tolik zaplatit, nechám si poradit. Tyhle co se týče technologií, jaké technologie (užitečné) jsou třeba v těch lepších zařízeních?
Switch budu potřebovat s minimálně 14 porty, jestli dobře počítám všechny datové zásuvky, NAS, druhý router/AP atp.
Naposledy upravil(a) Karrex dne 03 srp 2018 12:52, celkem upraveno 1 x.
Sestava v profilu.
Watercooling Club EXOverclocker@HWBot league rank#1 Aprilia Shiver Club BMW ///M Club
Watercooling Club EXOverclocker@HWBot league rank#1 Aprilia Shiver Club BMW ///M Club
-
Uziv00
Re: Ideální zapojení internetu v domě
"Proto prosím ber, že to bude čistě modem a pak bude další router a router." Dva routery za sebou je cesta do pekel a nikdy to nedělá dobrotu. Nedoporučuju.
"Ještě se zeptám, jakou výhodu má to, že použiji WiFi AP místo routeru?" Router zapojená jako switch se chová jako AP. V článku (kdybys ho četl), je:
Switch se dělá na 4/8/16/24... portů, takže dobrá volby by byla:
https://www.czc.cz/zyxel-gs1100-16/87307/produkt , nebo https://www.czc.cz/netgear-gs116/103732/produkt
Výhoda použití AP místo routeru:
- napájení přes PoE => nemusíš k tomu tahat zvlášť napájení, na druhou stranu musíš koupit switch, které PoE podporuje.
- jsou jako AP určeny, takže jsou konstrukčně dány pro tento typ použití (lepší design atd.)
https://www.czc.cz/ubiquiti-unifi-ac-lo ... 49/produkt
"Ještě se zeptám, jakou výhodu má to, že použiji WiFi AP místo routeru?" Router zapojená jako switch se chová jako AP. V článku (kdybys ho četl), je:
Pokud použiješ asusy, pak z každého z nich můžeš ještě nějam přivést jeden kabel LAN, pokud ten tplink, tak 3 kabely.5. Nastavíme WiFi shodně s prvním routerem Linksys. Režim WiFi - AccesPoint (AP).
Switch se dělá na 4/8/16/24... portů, takže dobrá volby by byla:
https://www.czc.cz/zyxel-gs1100-16/87307/produkt , nebo https://www.czc.cz/netgear-gs116/103732/produkt
Výhoda použití AP místo routeru:
- napájení přes PoE => nemusíš k tomu tahat zvlášť napájení, na druhou stranu musíš koupit switch, které PoE podporuje.
- jsou jako AP určeny, takže jsou konstrukčně dány pro tento typ použití (lepší design atd.)
https://www.czc.cz/ubiquiti-unifi-ac-lo ... 49/produkt
Re: Ideální zapojení internetu v domě
Však já ho četl, už jsem ti to psalITCrowd píše:Router zapojená jako switch se chová jako AP. V článku (kdybys ho četl), je:5. Nastavíme WiFi shodně s prvním routerem Linksys. Režim WiFi - AccesPoint (AP).
PoE se mi jako varianta na AP docela zamlouvá, který switch s PoE?
Dokázal bys ještě odpovědět na toto?
"Ty tebou doporučené routery by opravdu stačili? Fakt třeba na 3 WiFi zařízení a klidně i víc, s 200Mbit připojením?
Já počítal s vybavením klidně kolem 15000Kč, ale jestli tam není za co tolik zaplatit, nechám si poradit. Tyhle co se týče technologií, jaké technologie (užitečné) jsou třeba v těch lepších zařízeních?"
Sestava v profilu.
Watercooling Club EXOverclocker@HWBot league rank#1 Aprilia Shiver Club BMW ///M Club
Watercooling Club EXOverclocker@HWBot league rank#1 Aprilia Shiver Club BMW ///M Club
-
Uziv00
Re: Ideální zapojení internetu v domě
Switche s PoE: https://www.czc.cz/switche/produkty?q-c ... 3522554=t1
Odpověď na otázku: Přijde na to, co si představuješ pod "stačit"... Pokud si to představuješ tak, že na každém zařízení v každém bodě v domě budeš mít 200Mbit/s, tak ti nebude stačit ani 10 routerů. Tohle mi připadá jako rozumné řešení, s tím, že pokud by v dolním patře pokrytí haprovalo, dalo by se to vyřešit přidáním dalšího routeru někde vprostřed v dolním patře.
Odpověď na otázku: Přijde na to, co si představuješ pod "stačit"... Pokud si to představuješ tak, že na každém zařízení v každém bodě v domě budeš mít 200Mbit/s, tak ti nebude stačit ani 10 routerů. Tohle mi připadá jako rozumné řešení, s tím, že pokud by v dolním patře pokrytí haprovalo, dalo by se to vyřešit přidáním dalšího routeru někde vprostřed v dolním patře.
-
- Podobná témata
- Odpovědi
- Zobrazení
- Poslední příspěvek
-
- 2 Odpovědi
- 26780 Zobrazení
-
Poslední příspěvek od Karel203
-
- 4 Odpovědi
- 11435 Zobrazení
-
Poslední příspěvek od WinDroid
-
- 8 Odpovědi
- 14029 Zobrazení
-
Poslední příspěvek od Bary-Jan
-
- 1 Odpovědi
- 27513 Zobrazení
-
Poslední příspěvek od pikaso.andreas
-
- 0 Odpovědi
- 21763 Zobrazení
-
Poslední příspěvek od walderan

